Skip to main content

Wohnquartier Alpenstraße

Wettbewerb Neubau Wohnquartier Alpenstraße 67, Salzburg


Architekturbüro:
Schabelreiter Architektur
Arch. DI Elisabeth Schabelreiter
Salzburg

Freiraumplanung:
SI Landschaftsarchitektur ZT
DI Srdan Ivkovic
Wien

Bauphysik:
Bauphysik Team
Zwittlinger & Staffl Engineering OG
Salzburg


Die Planung für das neue Wohnquartier berücksichtigt die vielfältigen Herausforderungen des schmalen, lärmexponierten Bauplatzes, die aktuell besonders wichtigen Anforderungen an Nachhaltigkeit und Klimabewusstsein sowie die flexible Anpassbarkeit an die sozialen Veränderungen und Bedürfnisse der künftigen Nutzer:innen.

Städtebauliche und architektonische Überlegungen

Das Projekt vermittelt zwischen der lärmbelasteten Alpenstraße im Westen und einer ruhigen Wohngegend im Osten.
Der gesamte Bau wird als Schallschutzbarriere zur Straße hin ausgebildet. Die Bebauung am Grundstück Alpenstraße 67 wird in drei Einzelkörper gegliedert, welche gegenüber der Straßenflucht leicht verdreht sind, um bessere Orientierung der Wohnungen und interessantere Freibereiche an beiden Gebäudeseiten zu erhalten.
Entlang der Alpenstraße ist dadurch die Pflanzung einer stadtraumprägenden, erdgebundenen Baumreihe möglich.
Die beiden zentralen Stiegenhäuser verbinden die drei einzelnen Baukörper. Sie sind zur Alpenstraße, nach Westen hin, als Lärm- und Witterungsschutz verglast ausgeführt. Dennoch handelt es sich um Außenräume. Die ostseitige Fassade und die Anschlüsse zu den Laubengängen bleiben offen.

Lage und Orientierung

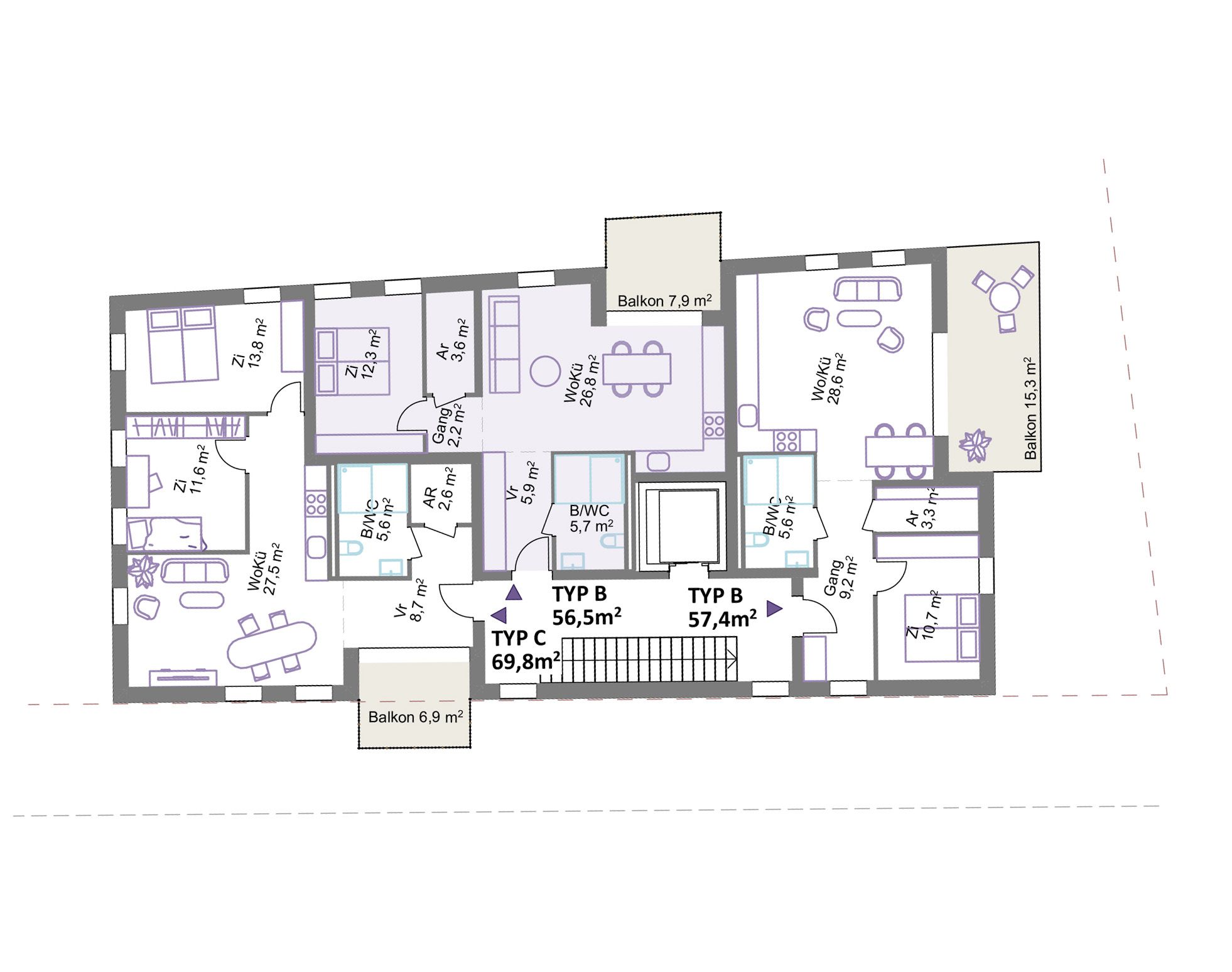
2-seitige Orientierung:

– ausschließliche durchgesteckte Wohnungen

– Orientierung aller Wohnungen in beide Richtungen, West und Ost

– abgesetzte Laubengangerschließung mit halböffentlicher Zwischenzone ermöglicht Interaktion

– private Balkone auf der ruhigen Ostseite

Konzeptgrafik

Entwurfsparameter – Städtebau

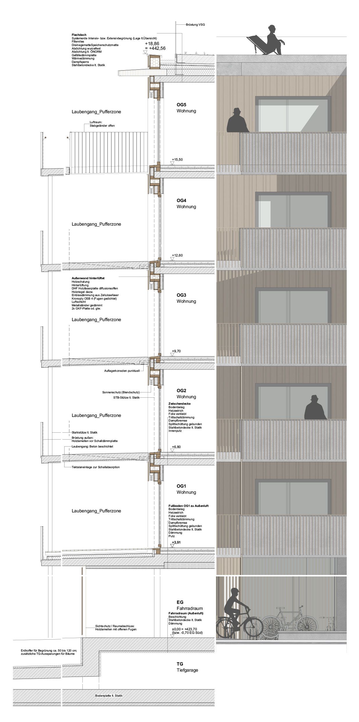
Laubengänge und Pufferzonen

Direkt von den zentralen Stiegenhaus-Plattformen aus gelangt man auf die Laubengänge. Diese befinden sich an der Westseite und somit an der lauten Straßenseite des Gebäudes. Um allen Wohnungen beidseitige Orientierung  zu ermöglichen sind die Laubengänge von der Fassade abgerückt. Dadurch entsteht mehr Privatsphäre für die Wohnungen an der Erschließungsseite. Durch das Abrücken entsteht eine Pufferzone mit Lufträumen und balkonartigen Vorzonen, die den Wohnungen zugeordnet sind und vielfältig genutzt werden können.

Der erweiterte Laubengang wird zum Ort der Begegnung und Kommunikation. Hier kann Interaktion stattfinden, hier kann man sitzen und beobachten, Pflanzen kultivieren, am aktiven Leben der Stadt teilnehmen und das Treiben auf der Alpenstraße verfolgen. Durch die tiefen Lufträume entsteht dennoch eine Schutzbarriere zwischen öffentlichem Laubengang und den Fenstern der dahinterliegenden Wohnungen. Wie in kleinen Vorgärten werden hier Pflanzen gezüchtet, Kinderwägen aufbewahrt oder Kaffeetischchen aufgestellt, um an der Nachbarschaft aktiv teilzunehmen. Sitzbänke übernehmen die Funktion der traditionellen Hausbank, die gerade von älteren Menschen gerne benutzt wird, um das Treiben auf der Straße vor dem Haus zu beobachten.

Bauweise und Materialität

Die gewählte Hybridbauweise aus STB-Skelettbauweise (Recyclingbeton) mit Holzriegelwänden kombiniert die Vorteile des Massivbaues wie Speichermasse, lange Werthaltigkeit durch unempfindliche Tragstruktur, hohe statische Belastbarkeit, die eine intensive Dachbegrünung ermöglicht und guten Schallschutz mit den ökologischen Vorteilen des Holz-Riegelbaues und  ermöglicht eine langfristige flexible Nutzung. Im Sinne der Rückbaufähigkeit werden weitgehend Plattenwerkstoffe statt verklebten Folien verwendet. Als Dämmung kommt im Holzriegelbau eine Zellulosedämmung zum Einsatz. Die unterschiedlichen Baustoffe werden aufgrund ihrer Qualität bewusst ausgewählt. Die Verwendung von Stahlbeton ist aus ökologischen Gründen in der heutigen Zeit so gering wie möglich zu halten. Dennoch kommt Stahlbeton in der Primärstruktur aus mehreren Gründen zum Einsatz: Die massiven Decken bringen in Kombination mit den modular aufgebauten Grundrissen maximale Flexibilität über die Lebensdauer. Weiters wird vor dem Hintergrund der zu erwartenden Klimaveränderungen der Einsatz von Speichermassen energetisch als sinnvoll erachtet. Diese werden im geplanten Hybridbau mit Begrünungen und Retentionsgründächern kombiniert um insbesondere der sommerlichen Überhitzung entgegenzuwirken. Die Laubengänge sind aus schlanken Stahlstützen und aus Brandschutzgründen mit Stahlbetondecken geplant.

Modulares System

Wohnungen: Die Grundrisse sind innerhalb der Tragstruktur flexibel anordenbar, zahlreiche Umbauvarianten sind möglich. Alle Wohnungen sind durchgesteckt und orientieren sich auf beide Seiten – West und Ost. Alle Bäder sind barrierefrei und ermöglichen dadurch die Bewohnbarkeit aller Altersgruppen. Es wird empfohlen, die Wohnungen überwiegend als 3-bis 4-achsige Clusterwohnungen auszubilden. Die Cluster ermöglichen das Zusammenwohnen in unterschiedlichsten Konstellationen. Insbesondere hochwertige Gemeinschaftswohnungen mit seperaten Bädern für Zusammenlebende mit Ansprüchen an Privatsphäre und Raumqualität sind in Salzburg nicht vorhanden. Aufgrund des hohen Preisniveaus ist für die meisten in Salzburg Lebenden nur wenig Wohnfläche erschwinglich. Hochwertige Wohngemeinschaften ermöglichen es für Erwachsene, Berufstätige, Alleinerziehende oder ältere Menschen zusätzlich zum privaten Rückzugsraum ein größeres Raumangebot durch Gemeinschaftsräume leistbar zu machen.

Schallschutz innerhalb und außerhalb der Wohnung: Trennwände zwischen Wohneinheiten wie auch innerhalb der Wohnungen sind hochwertig ausgestattet, um Privatsphäre zu gewährleisten. Die Betondecken gewährleisten guten Schallschutz zwischen den Geschoßen bei flexibler Anordnung der Wände. Straßenlärm wird aufgrund der absorbierenden Ausstattung der äußeren Laubengangbrüstungen noch vor den Wohnungen reflektiert bzw. absorbiert. Die zusätzliche Erfordernis von Schallschutzfenstern wäre im Detail zu prüfen. Insbesondere für die westseitigen (straßenseitigen) Wohnräume wird die Ausstattung mit kontrollierter Wohnraumlüftung empfohlen. Zur Positionierung der Lüftungsgeräte gibt es ausgewiesene Zonen auf den Dächern neben den zentralen Schächten.

Freiraumkonzept

Das Freiraumkonzept sieht zwei Landschaften für zwei unterschiedliche Seiten der Bebauung vor. Richtung Alpenstraße wird eine urbane Vorzone mit attraktiver Bepflanzung der Eingangsbereiche und Erdgeschoßzonen ausgestaltet. Diese Zone trägt wesentlich zur Adressbildung der Wohnanlage bei. Auf der anderen Seite zur Schiffmanngasse verläuft ein Gartenband, das als wichtigste Grünfläche auf dem Bauplatz fungiert und das Projekt mit östlich gelegenen städtebaulichen Kleinstrukturen verknüpft. Am nördlichen Ende liegt ein Café mit attraktiven Terrassen, welches ein Ort für Treffen, Kommunikation und Austausch der Bewohner:innen ist. Als Gegenpol am südlichsten Ende befindet sich der Spielplatz mit großen Bäumen und vielfältigen Spielangeboten. Der Spielplatz ist mit Architektur und Innenraum stark verwoben und stellt ein Highlight auf dem Bauplatz dar. Das Gelände wir muldenartig ausgebildet und umfasst schützend den Spielbereich, der sich wettergeschützt in eine überdachte Erdgeschoßzone hineinzieht. Die großen Bäume bilden hier eine Grünverbindung in die Egger- Lienz-Gasse und spenden ausreichend Schatten. Auf der Dachfläche erstreckt sich eine vielfältige Dachlandschaft mit Terrassen, Spielecken, Urban Gardening, Table Commune und einem Biodiversitätsdach nach den Prinzipien von Animal aided Design. Dank der intensiv begrünten Dachflächen wird auch die Klimaresilienz der Wohnananlage gestärkt.

Der Baumbestand wird vollständig erhalten. Als neue Bepflanzung auf dem gewachsenen Boden dienen zum Beispiel Lederhülsenbaum (Glaedicia skyline) und Zürgelbaum (Celtis Australis) als Leitbäume sowie weitere klimaresilienten Arten, auch auf den Unterbauten mit min. 80cm Aufbau. Die Versiegelung der Oberflächen wird minimal gehalten und die Wege sind mit versickerungsteiloffenen Belägen wie Pflaster geplant. Anhand der hellen Farben werden auch die thermischen Eigenschaften der Materialien verbessert. Weitere Maßnahmen gegen Überhitzung sind großzügige Beschattung mit Hilfe von Bäumen und PV-Pergolen sowie Verdunstungsflächen mit verzögerter Versickerung zur Verbesserung des Mikroklimas. Die Fassadenbegrüngung straßenseitig und in Atrien der Stiegenhäuser erfolgt anhand der bodengebundenen Rankgerüste mit Kletterpflanzen wie einer Pfeifenwinde (Aristolochia macrophylla), Jungfernrebe (Parthenocissus tricuspidata) und Immergrünes Geißblatt (Lonicera henryi). Gemeinschaftsfläche für Urban Gardening und Treffpunkt für Kommunikation stellen die wichtigsten Freiraumelement der Wohnanlage in der Schiffgasse dar. Ein grüner Puffer schirmt das Gebäude von der Straße ab und gibt ein attraktives Erscheinungsbild.