Skip to main content

Hotelkonzept – Your Space

Die menschliche Mobilität nahm während der letzten Jahrzehnte sowohl im Berufsleben als auch im Freizeitbereich stark zu. Zurückgelegte Distanzen wurden immer größer, das Mobilitätsverhalten ist von Spontaneität und Flexibilität geprägt. Die dem mobilen Menschen zur Verfügung stehende Infrastruktur entspricht jedoch kaum den hohen Anforderungen nach Flexibilität. Hotelzimmer müssen immer noch pro Tag bzw. Übernachtung gebucht werden, gut ausgestattete Arbeitsbereiche und Duschmöglichkeiten sind unabhängig von Hotelzimmern kaum vorhanden.

Your Space 24/7 ist ein Hotelkonzept, das anstatt voll ausgestatteter Hotelzimmer die Funktionen Schlafen, Arbeiten und Duschen unabhängig voneinander anbietet – 24 Stunden am Tag, 7 Tage die Woche. Ein- und Auschecken funktionieren jederzeit über Automaten. Bezahlt werden nur tatsächlich in Anspruch genommene Leistungen, abhängig von der exakten Aufenthaltsdauer. Das Hotel richtet sich an alle, die unterwegs sind und kurze oder längere Wartezeiten sinnvoll überbrücken möchten.

Als Projektstandort wurde der Hauptbahnhof Graz gewählt, wodurch das Projekt besonders im Zusammenhang mit öffentlicher Verkehrsmittelnutzung zu sehen ist.

Zielgruppe

Durchreisende, Hängengebliebene, Spontane, Wartende, Erschöpfte

Check-in

jederzeit, 24 Stunden am Tag, 7 Tage die Woche

Abrechnung

Bezahlt wird nur was konsumiert wird.
Berechnet wird nach der exakten Aufenthaltsdauer.

 

Check-in Ad(d) Space Technik

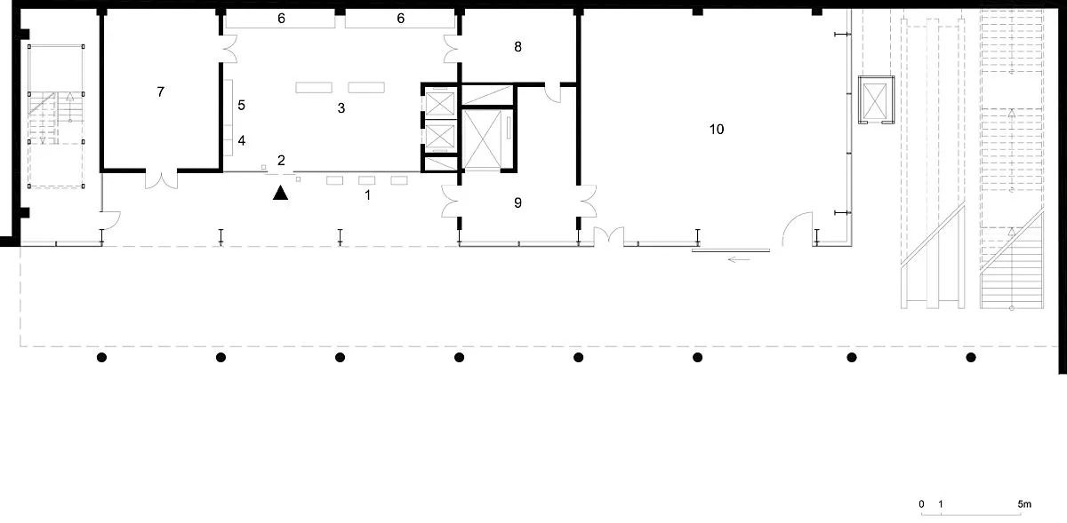
Vor dem Eingang befinden sich die Check-in Automaten (1), an welchen direkt gebucht werden kann oder sich eine Internetbuchung bestätigen läßt. Die Buchung erfolgt mittels Kreditkarte oder Vorausbezahlung in Bar. Danach erhält der Besucher am Automaten ein Ticket, das zum Zutritt zu den gebuchten Funktionsbereichen innerhalb des Gebäudes berechtigt. Die Eingangstüre öffnet sich nach dem Einführen des Tickets (2). Große Gepäckstücke können im Foyer versperrt werden (6), kleinere auch in den jeweiligen Geschoßen. Die Kassenautomaten (4) dienen der Abrechnung der tatsächlich in Anspruch genommenen Leistungen (Zeitdauer). Ermäßigung in Verbindung mit Bahntickets sind erstrebenswert.Der Ad(d) Space (10) ist je nach momentaner Nutzungsbelegung frei zugänglich oder verschlossen.

Ad(d) Space

Advertising Space
Additional Space

Ad(d) Space ist ein verglaster, 7,40 m hoher, von allen Seiten einsehbarer Raum, der beliebig bespielt werden kann. Aufgrund der guten Einsehbarkeit und der stark frequentierten Lage (Verkehrsknoten) ist eine Nutzung als Ausstellungs- oder Werbefläche (ad space) naheliegend.

Weiters bietet sich der Raum auch als zusätzliche Lagerfläche der umliegenden Geschäfte oder der Zug-Catering Firma an, die sich zur Zeit im Bahnhofskeller unter der Kassenhalle eingemietet hat. Eine direkte Anlieferung ist unterirdisch oder über den Deckenschlitz über das Erdgeschoß möglich. Variierende Bespielung ist möglich und erwünscht.

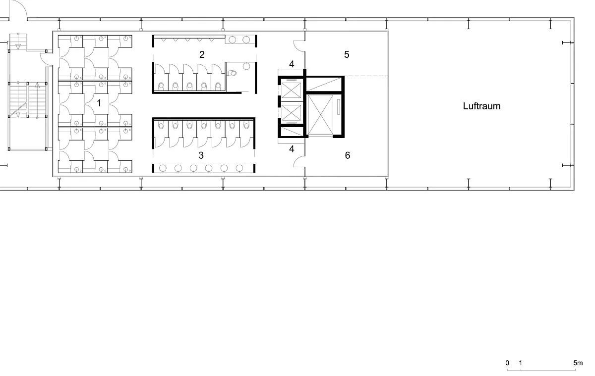
Sleeping Space

Das Schlafgeschoß ist über eine Drehtür nur mit Ticketeingabe betretbar. Zum barrierefreien Zugang steht eine weitere Tür auf Anfrage zu Verfügung.

Für jede Person, die einen Schlafplatz gebucht hat, wird von einem Bediensteten ein Bett mit Bettzeug und Lampe frei im Raum plaziert. Je nach Nachfrage stehen die Betten sehr frei oder beengt. Ein Vorrat an Betten ist zum raschen Zugriff im Raum gelagert und kann auch als Raumteiler verwendet werden. Durch den Lastenaufzug kann der gesamte Raum sehr rasch möbliert bzw. leergeräumt werden.

Nachts, bzw. bei großer Nachfrage steht das gesamte Geschoß zum Schlafen zur Verfügung. Tagsüber, oder zu wenig frequentierten Zeiten, kann der Raum mit Schiebewänden geteilt werden. Der Schlafbereich wird somit kleiner, und ein zweiter, frei bespielbarer Raum entsteht. Mögliche Nutzungen sind beispielsweise Seminare oder Schulungen. Durch die bestehende Versorgungseinheit mit Wasser, Getränkeautomat und Kühlschrank und durch ein enges Steckdosenraster am Fußboden sind sehr viele Bespielungen denkbar.

Space Capsules

Mobile Schlafeinheiten

Die Schlafeinheiten stehen auf einem Transportwagen nebeneinandergestapelt im Raum bereit. Jede Einheit ist mit Rollen ausgestattet und wird auf den ausgewählten Schlafplatz gerollt. In wenigen Schritten kann das Bett zu einer privaten Raumeinheit aufgeklappt werden.

Die textile Bespannung ist Schallabsorbierendund Lichtundurchlässig. Aufgrund der leichten und luftdurchströmten Konstruktion ist keine separate Belüftung der einzelnen Kapseln notwendig. Trotz der geringen Größe der Schlafeinheiten entsteht somit kein Beengtheitsgefühl. Die Übertragung von Luftschall innerhalb des Schlafraumes wird dafür in Kauf genommen.

 

Space Capsule zusammengelegt. Haltegriffe an beiden Enden des oberen Bügels erleichtern das Umherrollen im Raum.

Die Beine werden ausgeklappt und das gesamte Element um 90° gekippt.

Das Bett steht fertig am Boden, die Fixierung der Bügel wird gelöst und das Faltdach kann geöffnet werden.

Bei vollständiger Öffnung rastet ein Zapfen an beiden Drehpunkten ein. Vor dem Abbau werden diese beiden Fixierungen wieder gelöst.

Der geöffnetet Teil des Daches kann auf Wunsch mittels Seilzug wie ein Raffrollo verschlossen werden.

Unterschiedliche Stellungen des Rollos eröffnen unterschiedliche Ausblicks- und Kommunikationsmöglichkeiten.

Office Space

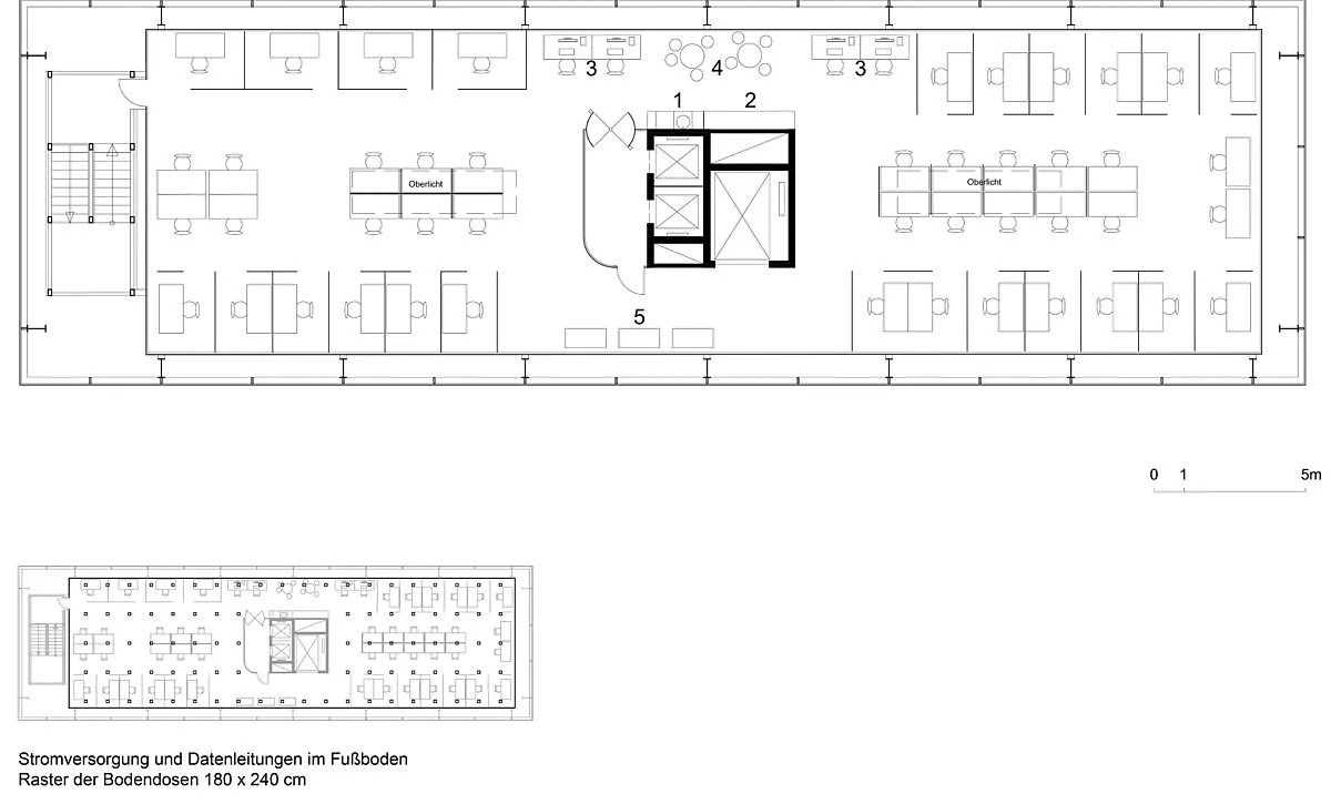
Das Geschoß des Office Space unterscheidet sich räumlich vom Sleeping Space nur durch die beiden Oberlichten.

Wie in Level 3 erfolgt der Zugang auch hier mittels Ticketkontrolle an einer Drehtür. Versorgungseinheit und Schließfächer sind ebenfalls vorhanden. Die Arbeitsplätze sind frei wählbar, jeder Person steht ein Schreibtisch zur Verfügung. Die Möblierung ist flexibel und kann an die Nachfrage angepaßt werden. In der Basisanordnung stehen sowohl Einzelzellen als auch Gruppenarbeitsplätze zur Verfügung. Steckdosen und Datenkabel sind im Boden verlegt und in einem Raster von 180 x 240 cm angeordnet. Das Gebäude ist auch mit Wireless LAN ausgestattet. Möbel können mit dem Lastenaufzug leicht zu- und abtransportiert werden. Bei Bedarf ist auch dieses Geschoß völlig entleerbar und kann anderweitig bespielt werden. Die Räume des Office Space und Sleeping Space sind weitgehend nutzungsneutral und können auch ineinander übergreifen.

Lüftungs- und Klimakonzept